Stopoil erottimet

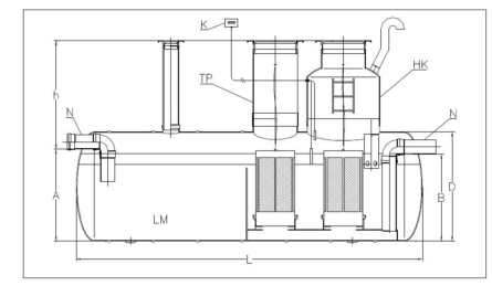
I-luokan öljynerottimet

I-luokan öljynerottimilla puhdistetaan öljyistä sadevettä, jätevettä tai teollisuuden vesiä, jotta ne voitaisiin viemäröidä tai johtaa luontoon. Öljynerottimia käytetään yleisesti mm. parkkipaikoilla, ajoteillä, teollisuudessa, polttoaineasemilla, pesualueilla ja huoltoliikkeissä. I-luokan öljynerottimien tulee eurooppalaisen standardin EN 858-1 mukaan pystyä pitämään poistuvan jäteveden hiilivetyjen määrän alle 5 mg/litrassa.

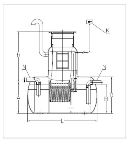
II-luokan öljynerottimet

II-luokan öljynerottimia käytetään erottamaan sadevedestä tai teollisuuden jätevesistä öljyä ennen viemäröintiä. Niitä käytetään yleisimmin mm. parkkipaikoilla, teollisuudessa, romuttamoilla, sekä autokorjaamoilla ja -halleilla. II-luokan öljynerottimien toiminta perustuu öljyn ja polttoaineen erottamiseen vedestä painovoimaisesti, öljytuotteiden noustessa vettä kevyempinä pintaan. Eurooppalaisen EN 582-2-standardin mukaan II-luokan öljynerotinten tulee pystyä pitämään poistuvan jäteveden hiilivetyjen määrä alle 100 mg/litrassa.
Erottimet
Sewage cleaners since 1968